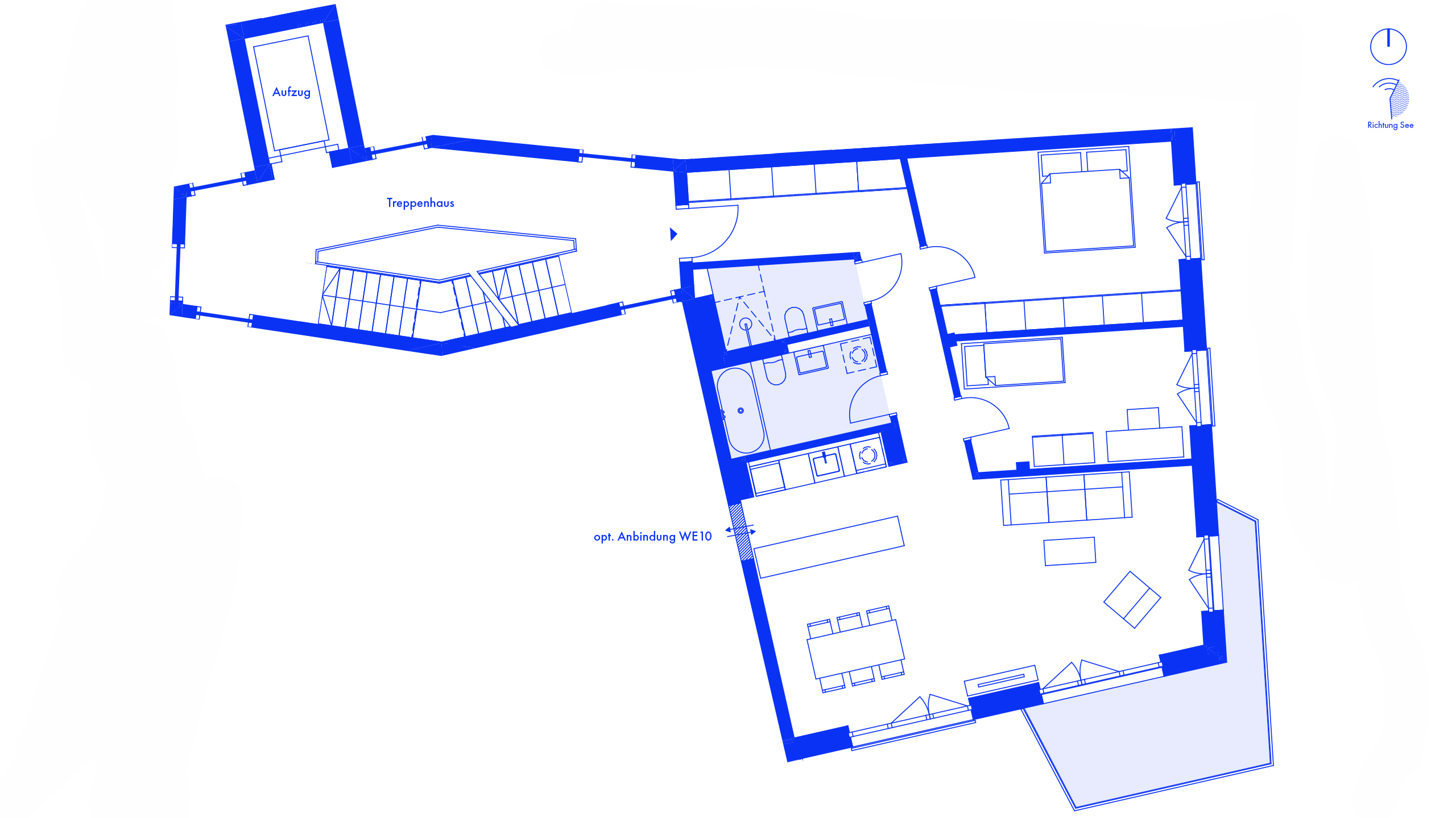
Haus 02 – Wohneinheit 09 (1.OG)

82340 Feldafing, Haus zum Kauf

Kontaktdaten

Objektdaten

  • Objekt-ID
    0000000282.09
  • Objekttyp
    Haus
  • Adresse
    Dr.-Appelhans-Weg 6
    82340 Feldafing
  • Wohnfläche ca.
    93,76 m²
  • Gesamtfläche ca.
    99,50 m²
  • Zimmer
    3
  • Zustand
    Erstbezug
  • Kaufpreis
    1.340.000 EUR

Energieausweis

  • Energieausweistyp
    Bedarfs­ausweis

Objekt­beschreibung

KlassikStudio – Diese klassische 3-Zimmer-Wohnung überzeugt mit hellen, gut geschnittenen Räumen und einem stilvollen Wohnambiente. Sie bietet funktionalen und zugleich gemütlichen Wohnraum – ideal für Paare oder Familien, die Wert auf zeitlose Eleganz und Barrierefreiheit legen. Der großzügige Wohn-Essbereich lädt zum Verweilen ein, während der Balkon zusätzlichen Raum zur Entspannung im Freien bietet. Optional kann eine angrenzende 1-Zimmer-Wohnung mit eigenem Balkon zugeschaltet werden – ideal für Gäste, Homeoffice oder als separates Rückzugsrefugium.

Lage

Direktanfrage

* Pflichtangaben
 SSL-verschlüsselt
Ihr Suchprofil – wir finden die passende Wohnung für Sie.
Jetzt anfragen