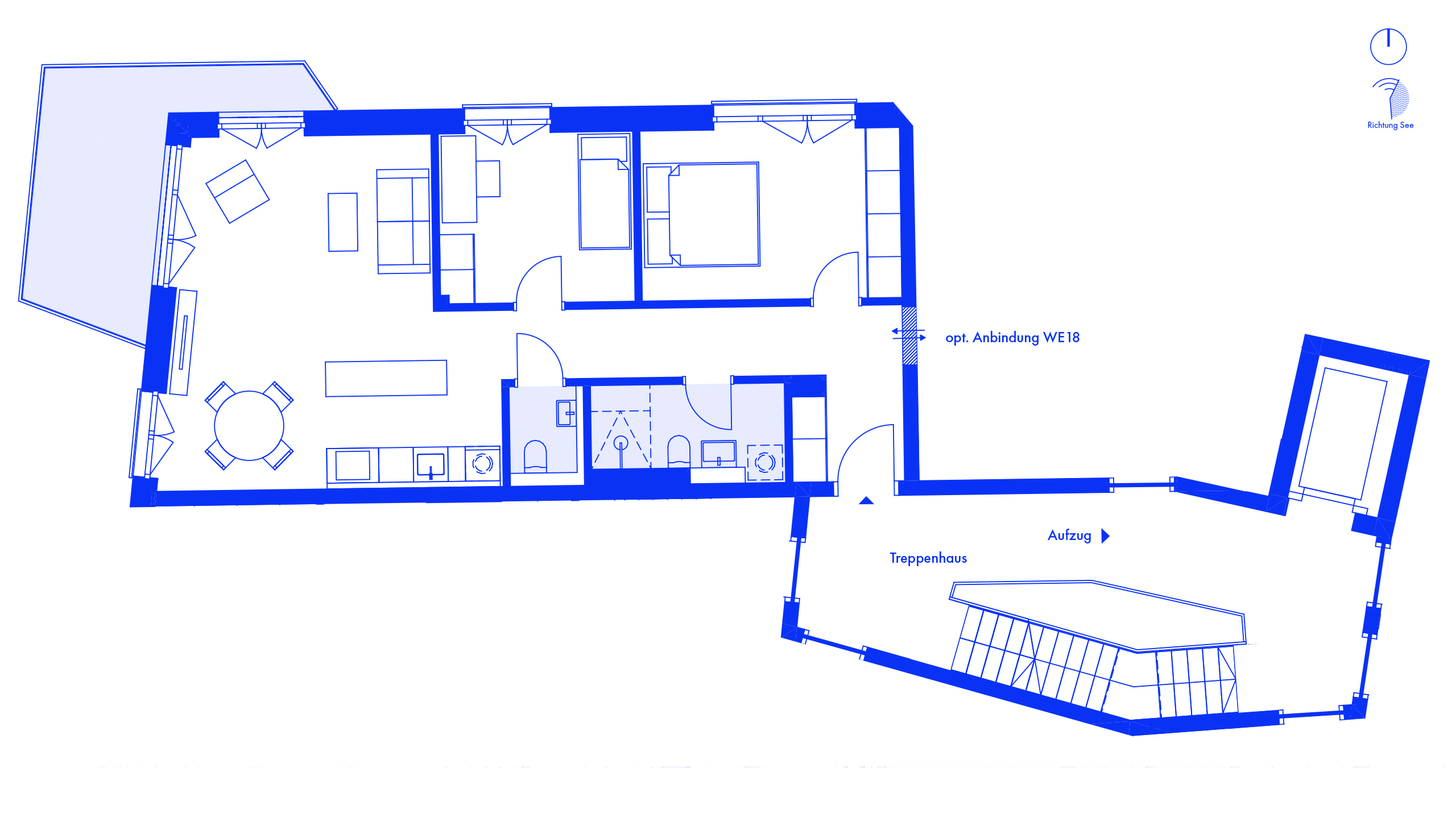
Haus 07 – Wohneinheit 17 (2.OG)

82340 Feldafing, Haus zum Kauf

Kontaktdaten

Objektdaten

  • Objekt-ID
    0000001367.17
  • Objekttyp
    Haus
  • Adresse
    Dr.-Appelhans-Weg 6
    82340 Feldafing
  • Wohnfläche ca.
    74,82 m²
  • Gesamtfläche ca.
    80,71 m²
  • Zimmer
    3
  • Zustand
    Erstbezug
  • Kaufpreis
    1.158.000 EUR

Energieausweis

  • Energieausweistyp
    Bedarfs­ausweis

Objekt­beschreibung

KlassikStudio- Diese klassische 3-Zimmer-Wohnung überzeugt mit hellen, gut geschnittenen Räumen und einem stilvollen Wohnambiente. Sie bietet funktionalen und zugleich gemütlichen Wohnraum – ideal für Paare oder Familien, die Wert auf zeitlose Eleganz legen. Der großzügige Wohn-Essbereich lädt zum Verweilen ein, während der Balkon zusätzlichen Raum zur Entspannung im Freien bietet.

Lage

Direktanfrage

* Pflichtangaben
 SSL-verschlüsselt