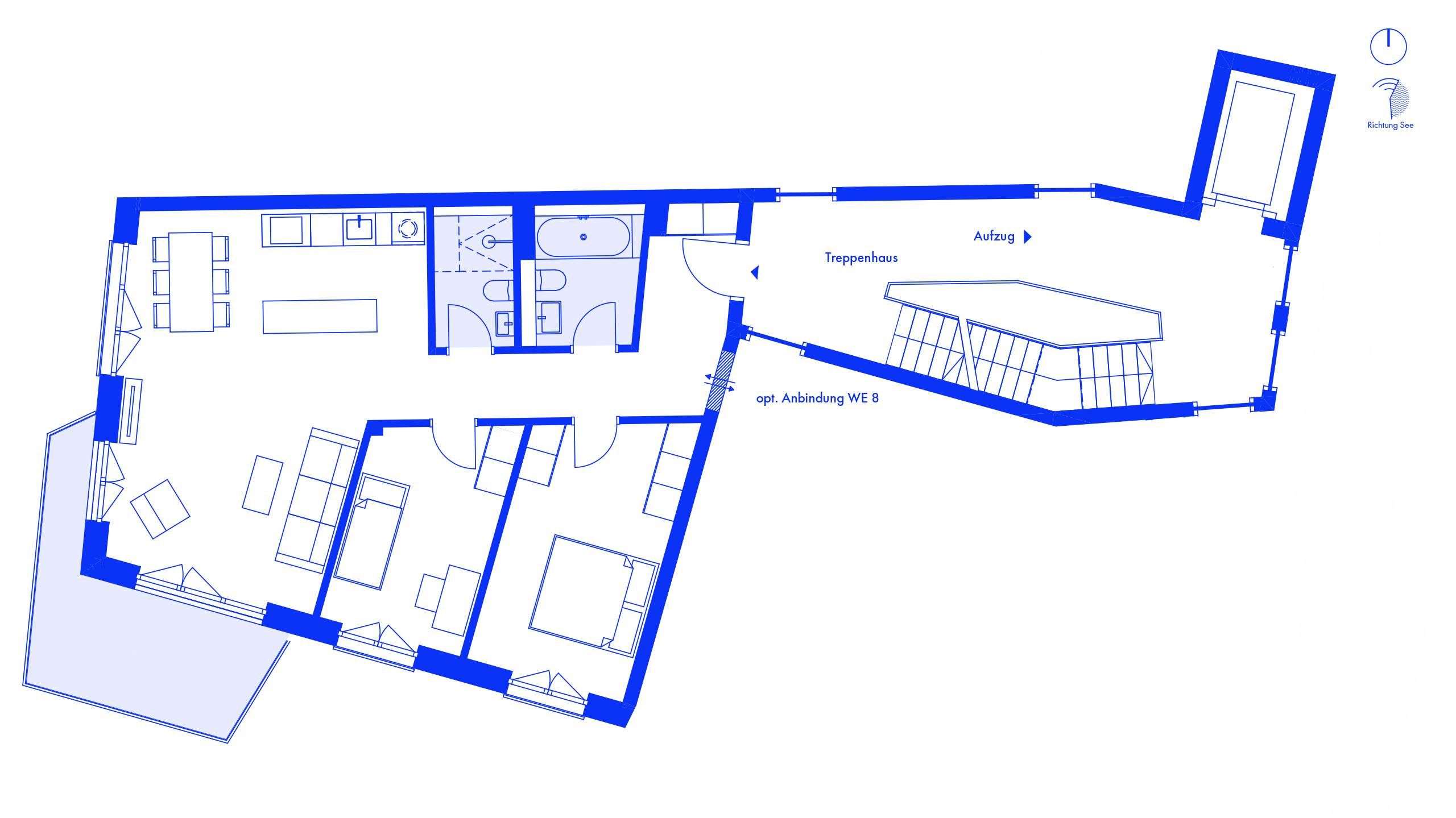
Haus 07 – Wohneinheit 09 (1.OG)

82340 Feldafing, Haus zum Kauf

Kontaktdaten

Objektdaten

  • Objekt-ID
    0000001207.09
  • Objekttyp
    Haus
  • Adresse
    Dr.-Appelhans-Weg 6
    82340 Feldafing
  • Wohnfläche ca.
    81,64 m²
  • Gesamtfläche ca.
    87,47 m²
  • Zimmer
    3
  • Zustand
    Erstbezug
  • Kaufpreis
    1.234.000 EUR

Energieausweis

  • Energieausweistyp
    Bedarfs­ausweis

Objekt­beschreibung

KlassikStudio – Diese klassische 3-Zimmer-Wohnung überzeugt mit hellen, gut geschnittenen Räumen und einem stilvollen Wohnambiente. Sie bietet funktionalen und zugleich gemütlichen Wohnraum – ideal für Paare oder Familien, die Wert auf zeitlose Eleganz und barrierefreies Wohnen legen. Der großzügige Wohn-Essbereich lädt zum Verweilen ein, während der Balkon zusätzlichen Raum zur Entspannung im Freien bietet. Zudem besteht die Möglichkeit einer direkten Anbindung an die angrenzende 1-Zimmer-Wohnung, was flexible Wohnkonzepte und individuelle Nutzungsmöglichkeiten eröffnet.

Lage

Direktanfrage

* Pflichtangaben
 SSL-verschlüsselt
Ihr Suchprofil – wir finden die passende Wohnung für Sie.
Jetzt anfragen