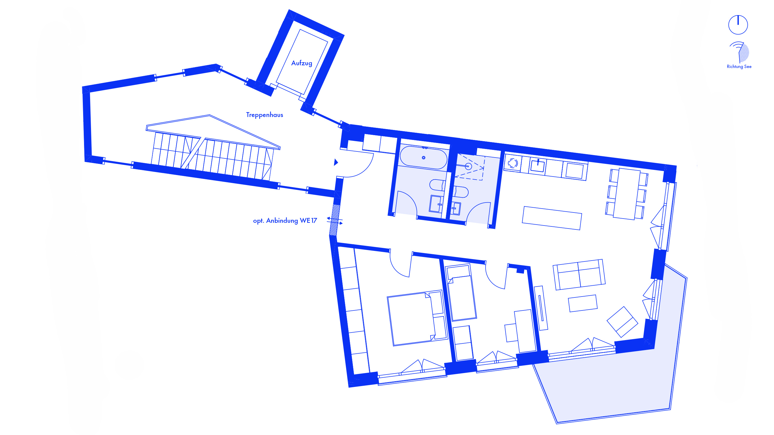
KlassikStudio – Diese klassische 3-Zimmer-Wohnung überzeugt mit hellen, gut geschnittenen Räumen und einem stilvollen Wohnambiente. Sie bietet funktionalen und zugleich gemütlichen Wohnraum – ideal für Paare oder Familien, die Wert auf zeitlose Eleganz und barrierefreies Wohnen legen. Die Wohnung befindet sich im 1. Obergeschoss und liegt zur ruhigen Gartenseite mit Ost-Ausrichtung – entsprechend im 3. Obergeschoss gelegen. Der großzügige Wohn-Essbereich lädt zum Verweilen ein, während der Balkon zusätzlichen Raum zur Entspannung im Freien bietet. Optional besteht die Möglichkeit, eine angrenzende 1-Zimmer-Wohnung mit anzubinden – ideal für Mehrgenerationenwohnen, Homeoffice oder Gäste.